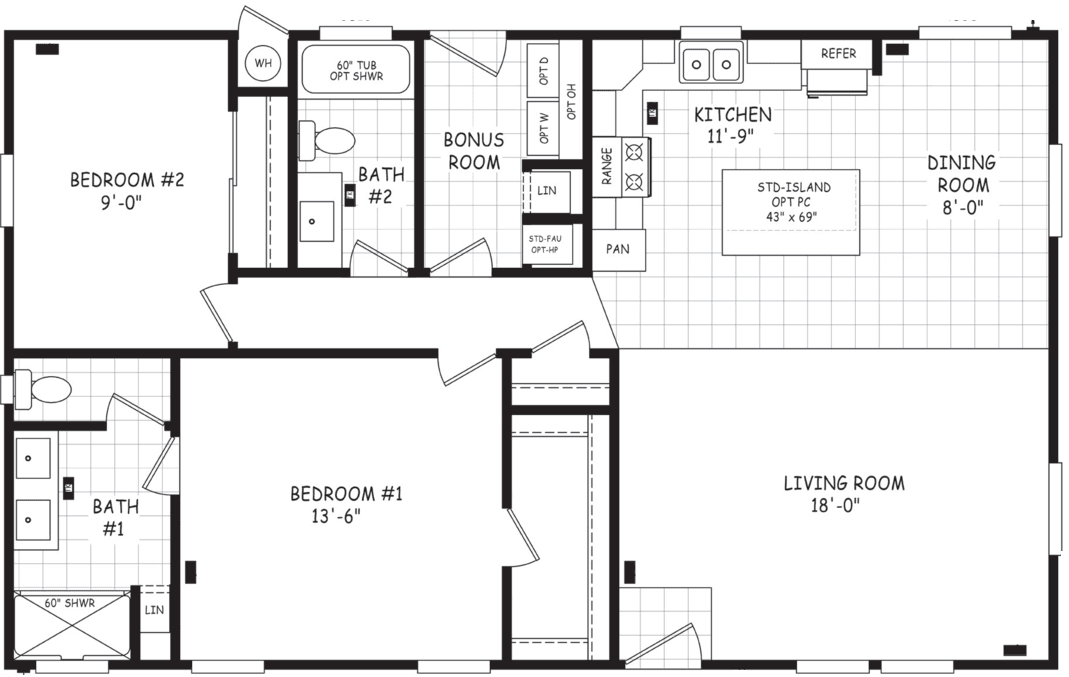
Homes | Edge 28442A