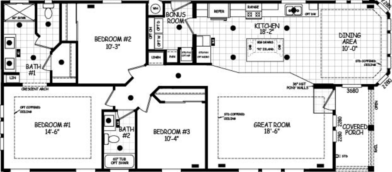
Homes | Pacifica 28593A