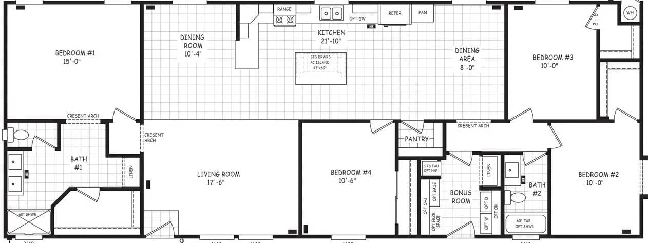
Homes | Pinnacle 28724B