Homes | The Gem (24543P)
Property map Enter your address or APN to check if this home fits on your property
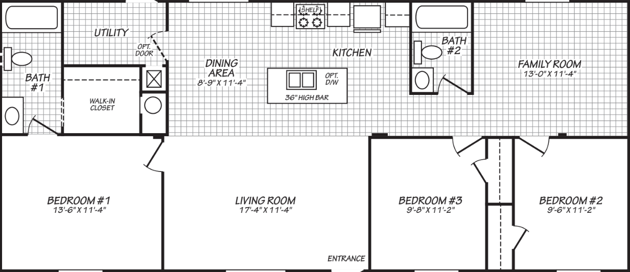
3 bedrooms
2 full bathrooms
1,260 sq. ft.
23' 4" x 54'
Pure Homes standard features
Construction
1 Year structural warranty (see Homeowner’s Guide for complete details) 3:12 Roof pitch 30 lb. Roof load 8’ flat ceilings Energy Star 2.0 compliant and certified 2” x 6” Exterior walls 16” O.C. 19/32” T&G OSB floor decking 16” O.C. floor joists Class A fire rated limited lifetime architectural shingles Removable hitch Zone III Thermal Specifications: R-40 roof, R-21 walls, R-33 floor Scenic Homes of AZ
Your Neighborhood Dealer
Get started with Scenic Homes of AZ
Find, design, and order your next home in a few clicks.
Sign up
3 bedrooms
2 full bathrooms
1,260 sq. ft.
23' 4" x 54'
3:12 Roof pitch
30 lb. Roof load
8’ flat ceilings
Energy Star 2.0 compliant and certified
2” x 6” Exterior walls 16” O.C.
19/32” T&G OSB floor decking 16” O.C. floor joists Class A fire rated limited lifetime architectural shingles Removable hitch Zone III Thermal Specifications: R-40 roof, R-21 walls, R-33 floor Exterior
LP Smart Panel exterior siding 4” trim all windows “Zero” eaves all sides multi-section “Zero” end wall eaves on singlewides
LP Smart Panel exterior siding 4” trim all windows
“Zero” eaves all sides multi-section “Zero” end wall eaves on singlewides Mechanical
200 Amp all electric service (gas optional) Master water shut-off valve Shut-off valve on toilets 30 gallon Energy Star rated electric water heater Electric furnace LED can lights T/O GFI patio plug near rear door Porch lights at all exterior doors 32 watt whole house fan Smart technology thermostat
200 Amp all electric service (gas optional) Master water shut-off valve Shut-off valve on toilets 30 gallon Energy Star rated electric water heater Electric furnace
LED can lights T/O GFI patio plug near rear door Porch lights at all exterior doors 32 watt whole house fan Smart technology thermostat Interior
Factory select 10 oz. carpet 7/16” – 7# Carpet pad (Carpet & pad shipped loose on multi-section) Factory select vinyl flooring with baseboard in wet areas per plan White textured ceilings (orange peel) Factory select vinyl/paper covered wall panels T/O Wire closet shelves White window & door trim No entry lino, per plan 36” In-swing front door w/deadbolt 36” In-swing rear door w/deadbolt, per plan Vinyl clad thermo-pane windows with Low “E” 2-Panel white interior doors Residential style mortise door hinges (3) Stick-on door stops Horizontal slide windows MDF cabinet doors and face frame Cabinet doors & drawers with knobs 30” overhead kitchen cabinets No shelf above washer/dryer Unlined overhead cabinets w/single fixed shelf Unlined base cabinets w/no center shelf Metal side mount drawer guides Wood ply drawer sides
Factory select 10 oz. carpet 7/16” – 7# Carpet pad (Carpet & pad shipped loose on multi-section) Factory select vinyl flooring with baseboard in wet areas per plan White textured ceilings (orange peel) Factory select vinyl/paper covered wall panels T/O Wire closet shelves White window & door trim No entry lino, per plan 36” In-swing front door w/deadbolt 36” In-swing rear door w/deadbolt, per plan Vinyl clad thermo-pane windows with Low “E”
2-Panel white interior doors Residential style mortise door hinges (3) Stick-on door stops Horizontal slide windows MDF cabinet doors and face frame Cabinet doors & drawers with knobs 30” overhead kitchen cabinets No shelf above washer/dryer Unlined overhead cabinets w/single fixed shelf Unlined base cabinets w/no center shelf Kitchen
18 cu. ft. Whirlpool frost free refrigerator 30” Whirlpool free standing electric range w/clock, window & timer 30” power range hood with light 7” double cell stainless steel sink Dual handle chrome faucet Bank of drawers Laminate backsplash
18 cu. ft. Whirlpool frost free refrigerator 30” Whirlpool free standing electric range w/clock, window & timer 30” power range hood with light
7” double cell stainless steel sink Dual handle chrome faucet Bank of drawers Laminate backsplash Bathroom
60” 3 pc. ABS tub/shower per plan Acrylic sink w/dual handle faucets Elongated commode Exhaust fan Un-framed bathroom mirrors 36” height lavy cabinet Laminate backsplash 60” 3 pc. ABS tub/shower Acrylic sink w/dual handle faucets Elongated commode Exhaust fan Un-framed bathroom mirrors 36” height lavy cabinet Laminate backsplash
60” 3 pc. ABS tub/shower per plan Acrylic sink w/dual handle faucets Elongated commode Exhaust fan Un-framed bathroom mirrors 36” height lavy cabinet Laminate backsplash
60” 3 pc. ABS tub/shower Acrylic sink w/dual handle faucets Elongated commode Exhaust fan Un-framed bathroom mirrors 36” height lavy cabinet Laminate backsplash
1 Year structural warranty (see Homeowner’s Guide for complete details) 3:12 Roof pitch 30 lb. Roof load 8’ flat ceilings Energy Star 2.0 compliant and certified 2” x 6” Exterior walls 16” O.C. 19/32” T&G OSB floor decking 16” O.C. floor joists Class A fire rated limited lifetime architectural shingles Removable hitch Zone III Thermal Specifications: R-40 roof, R-21 walls, R-33 floor LP Smart Panel exterior siding 4” trim all windows “Zero” eaves all sides multi-section “Zero” end wall eaves on singlewides
1 Year structural warranty (see Homeowner’s Guide for complete details) 3:12 Roof pitch 30 lb. Roof load 8’ flat ceilings
Metal side mount drawer guides
Wood ply drawer sides
Energy Star 2.0 compliant and certified
2” x 6” Exterior walls 16” O.C.
19/32” T&G OSB floor decking
16” O.C. floor joists
Class A fire rated limited lifetime architectural shingles Removable hitch Zone III Thermal Specifications: R-40 roof, R-21 walls, R-33 floor LP Smart Panel exterior siding 4” trim all windows “Zero” eaves all sides multi-section “Zero” end wall eaves on singlewides
Images of homes are solely for illustrative purposes and should not be relied upon. Images may not accurately represent the actual condition of a home as constructed, and may contain options which are not standard on all homes.
3 Bed | 2 Bath | 1,260 Sq. Ft. | 23' 4" x 54'
3 Bed | 2 Bath | 1,173 Sq. Ft. | 26' 8" x 44'
3 Bed | 2 Bath | 1,140 Sq. Ft. | 15' x 76'
3 Bed | 2 Bath | 1,120 Sq. Ft. | 23' 4" x 48'