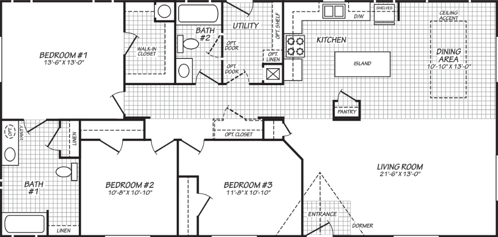
Homes | The Clearwater (28563C)