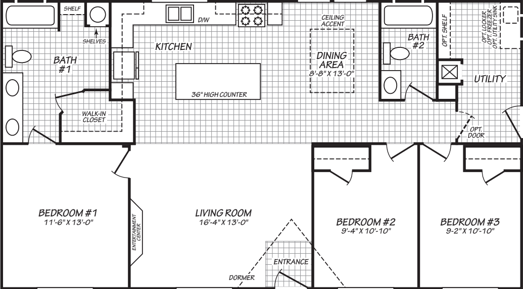
Homes | The Jump Creek (28483N)