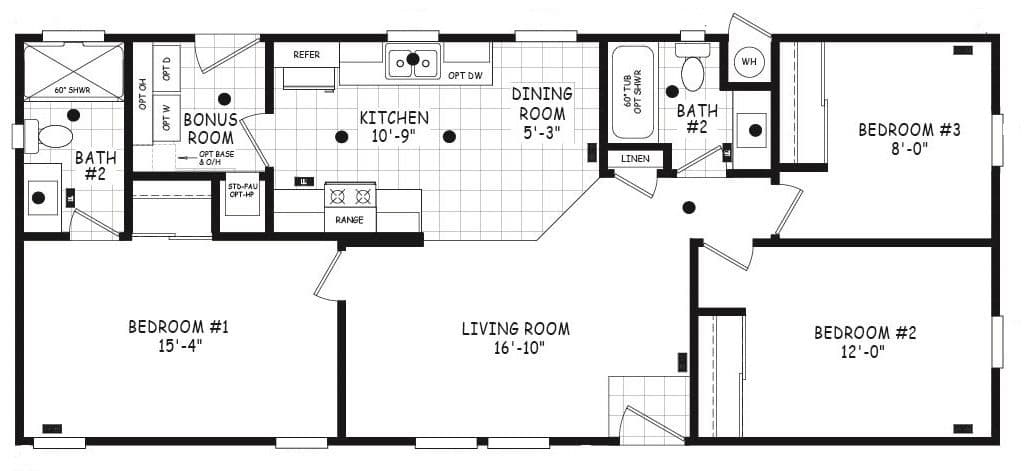
Homes | Edge 20483A