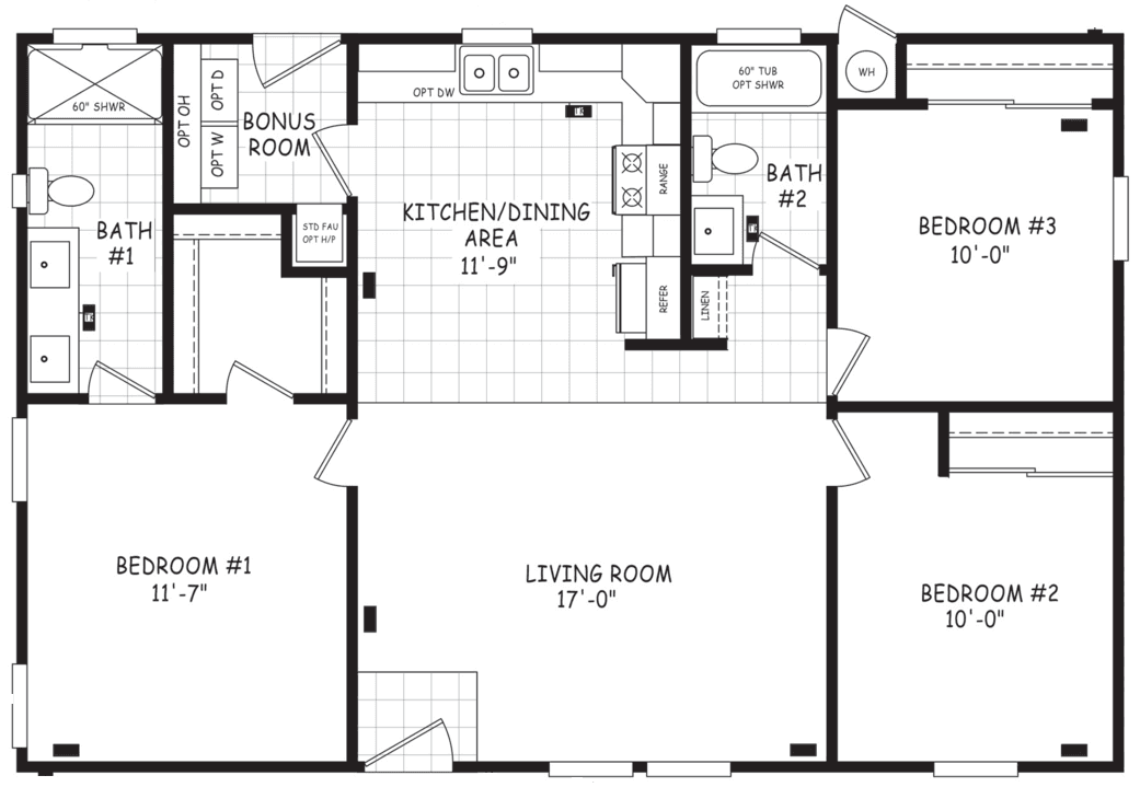
Homes | Edge 28403A